Skip to content
Stix & Burrow
Deck plan
Deck-to-street measurements
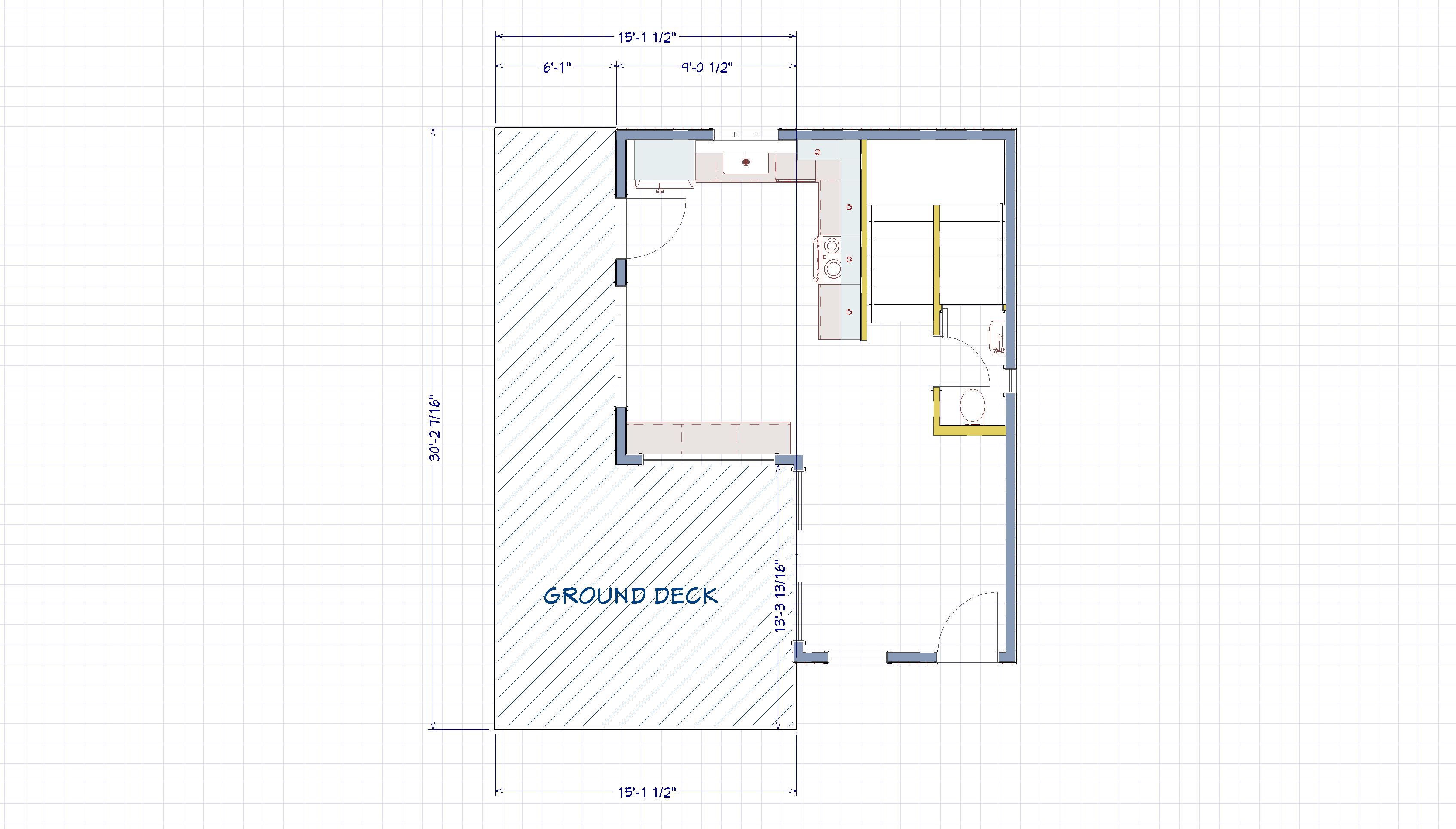
Ground deck measurements
Rooftop deck measurements
Loading Comments...
Write a Comment...
Email (Required)
Name (Required)
Website
Subscribe
Subscribed
Stix & Burrow
Sign me up
Already have a WordPress.com account?
Log in now.
Stix & Burrow
Subscribe
Subscribed
Sign up
Log in
Copy shortlink
Report this content
View post in Reader
Manage subscriptions
Collapse this bar